Витрины AC59 (AMRA)
Основные характеристики:
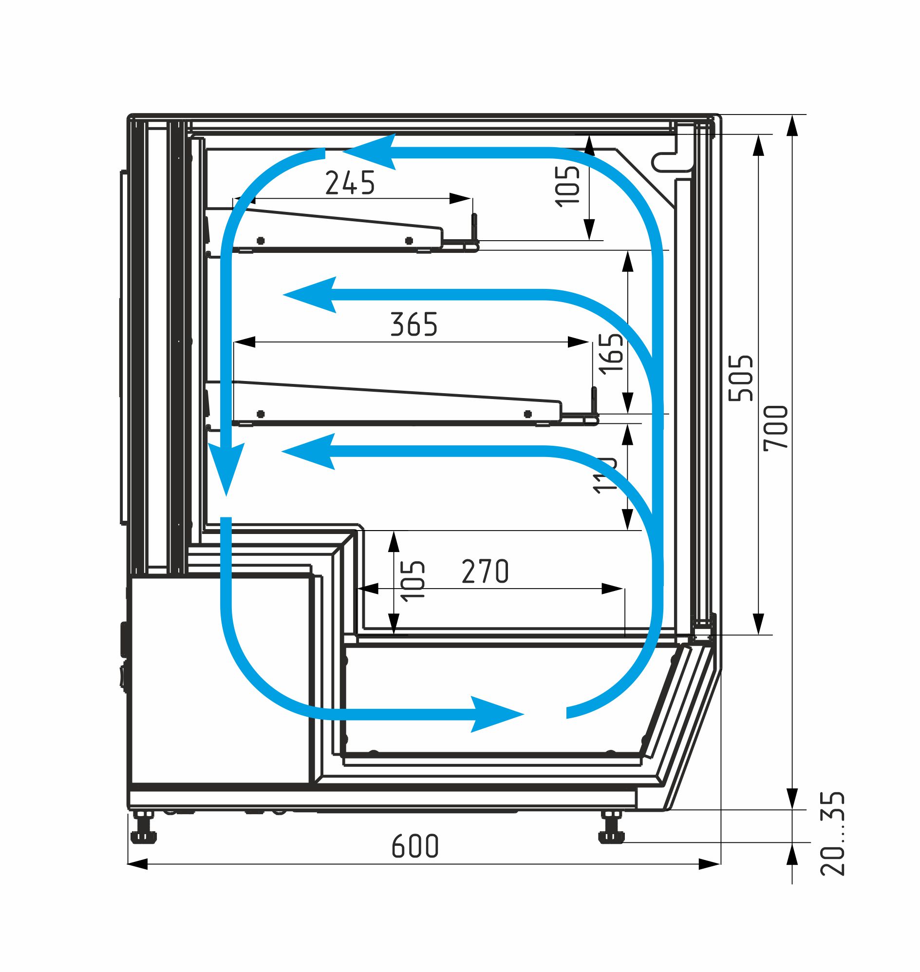
ГЛУБИНА ВЫКЛАДКИ: 270 (365, 245 полки-решетки)
Загрузить листовку AC59 (AMRA))Серия витрин AMRA разработана для использования в малых пространствах барных стоек и прилавков. Барная витрина имеет современный кубический дизайн и предназначена, как для размещения на поверхности, так и для встраивания в барную стойку.
УСТАНОВКА холодильной витрины:
Витрина должна быть установлена не ближе 2 м от отопительных приборов. Запрещается эксплуатация витрины при попадании на нее прямых солнечных лучей, воздушных потоков от кондиционеров, вентиляторов и обогревателей.
НЕКОТОРЫЕ ДЕТАЛИ ИМЕЮТ ЗАЩИТНОЕ ПОКРЫТИЕ (ПЛЕНКУ), КОТОРОЕ НЕОБХОДИМО УДАЛИТЬ.
После пуска агрегата, и при достижении требуемой температуры, загрузить витрину предварительно охлажденными до температуры полезного объема продуктами.
Высота выкладки продуктов для демонстрации должна быть не более 150 мм на нижнем поддоне и не более 100 мм на полках.
Внимание нагрузка на полку-решетку не более:
0,7 верхняя-8 кг; нижняя-12 кг
0,9 верхняя-11; нижняя-16 кг
1,2 верхняя-14 кг; нижняя-21 кг
Запрещается загораживать воздуховоды.
При невыполнении требований нарушается циркуляция воздуха, эксплуатационные характеристики изделия ухудшаются, что может привести к порче пищевых продуктов.
При дождливой или влажной погоде на витрине может выпадать конденсат. Это не является неисправностью. В этом случае время от времени протирайте витрину мягкой тканью.
УСТАНОВКА тепловой витрины:
Витрина должна быть установлена не менее 1 м до легковоспламеняющихся материалов.
Запрещается эксплуатация витрины при попадании на нее воздушных потоков от кондиционеров, вентиляторов.
НЕКОТОРЫЕ ДЕТАЛИ ИМЕЮТ ЗАЩИТНОЕ ПОКРЫТИЕ (ПЛЕНКУ), КОТОРОЕ НЕОБХОДИМО УДАЛИТЬ.
Температура полок не регулируется.
Загрузить витрину продуктами, равномерно располагая их на полках. Нагрузка на полку не более 3 кг на погонный метр распределенной нагрузки.
Металлический поддон использовать для выкладки продуктов, не требующих подогрева.
ВНИМАНИЕ! Все проводимые работы производить только после отключения витрины от сети питания
Габаритные размеры упаковки ДхШхВ, мм (деревянная обрешетка):
0,7 850х750х890
0,9 1050х750х890
1,2 1350х750х890
УСТАНОВКА холодильной витрины:
Витрина должна быть установлена не ближе 2 м от отопительных приборов. Запрещается эксплуатация витрины при попадании на нее прямых солнечных лучей, воздушных потоков от кондиционеров, вентиляторов и обогревателей.
НЕКОТОРЫЕ ДЕТАЛИ ИМЕЮТ ЗАЩИТНОЕ ПОКРЫТИЕ (ПЛЕНКУ), КОТОРОЕ НЕОБХОДИМО УДАЛИТЬ.
После пуска агрегата, и при достижении требуемой температуры, загрузить витрину предварительно охлажденными до температуры полезного объема продуктами.
Высота выкладки продуктов для демонстрации должна быть не более 150 мм на нижнем поддоне и не более 100 мм на полках.
Внимание нагрузка на полку-решетку не более:
0,7 верхняя-8 кг; нижняя-12 кг
0,9 верхняя-11; нижняя-16 кг
1,2 верхняя-14 кг; нижняя-21 кг
Запрещается загораживать воздуховоды.
При невыполнении требований нарушается циркуляция воздуха, эксплуатационные характеристики изделия ухудшаются, что может привести к порче пищевых продуктов.
При дождливой или влажной погоде на витрине может выпадать конденсат. Это не является неисправностью. В этом случае время от времени протирайте витрину мягкой тканью.
УСТАНОВКА тепловой витрины:
Витрина должна быть установлена не менее 1 м до легковоспламеняющихся материалов.
Запрещается эксплуатация витрины при попадании на нее воздушных потоков от кондиционеров, вентиляторов.
НЕКОТОРЫЕ ДЕТАЛИ ИМЕЮТ ЗАЩИТНОЕ ПОКРЫТИЕ (ПЛЕНКУ), КОТОРОЕ НЕОБХОДИМО УДАЛИТЬ.
Температура полок не регулируется.
Загрузить витрину продуктами, равномерно располагая их на полках. Нагрузка на полку не более 3 кг на погонный метр распределенной нагрузки.
Металлический поддон использовать для выкладки продуктов, не требующих подогрева.
ВНИМАНИЕ! Все проводимые работы производить только после отключения витрины от сети питания
Габаритные размеры упаковки ДхШхВ, мм (деревянная обрешетка):
0,7 850х750х890
0,9 1050х750х890
1,2 1350х750х890
| Модель | Габаритные размеры, мм | Масса, кг | t, °C | Экс. пл-дь, м2 | Потр-е эл/эн в сутки, кВт | Цена, руб | |||
|---|---|---|---|---|---|---|---|---|---|
| Длина | Ширина | Высота | |||||||
|
AC59 VV 0,7-1
Посмотреть чертеж |
700 | 600 | 710 (745) | 78 | +4...+10 | 0,55 | 4,9 | ||
|
AC59 VV 0,9-1
Посмотреть чертеж |
900 | 600 | 710 (745) | 88 | +4...+10 | 0,72 | |||
|
AC59 VV 1,2-1
Посмотреть чертеж |
1200 | 600 | 710 (745) | 105 | +4...+10 | 0,98 | 5,5 | ||
|
AC59 N 0,7-1 нейтральная
Посмотреть чертеж |
700 | 600 | 710 (745) | 63 | 0,56 | ||||
|
AC59 N 0,9-1 нейтральная
Посмотреть чертеж |
900 | 600 | 710 (745) | 74 | 0,73 | ||||
|
AC59 N 1,2-1 нейтральная
Посмотреть чертеж |
1200 | 600 | 710 (745) | 86 | 0,99 | ||||
Стандартная комплектация
- Электронный блок управления Carel
- Корпус из стали
- Термоизоляция корпуса- пенополиуретан
- Экспозиционная поверхность из нержавеющей стали
- 2 полки-решетки с ограничителями, возможностью установки под углом 5 град
- Выпариватель конденсата (холодильные)
- Боковая LED подсветка
- Остекление - стеклопакеты
- Раздвижные задние дверцы
Опции
- Поддон под макарони (1 секция, 2 секции)
- Подставка для бутербродов








