Витрины для ингредиентов A30 (IKI)
Основные характеристики:
Витрины для ингредиентов A30 (IKI) созданы для максимального использования всего пространства любой, даже маленькой кухни. Витрины A30 (IKI) гастронормированы GN1/4.
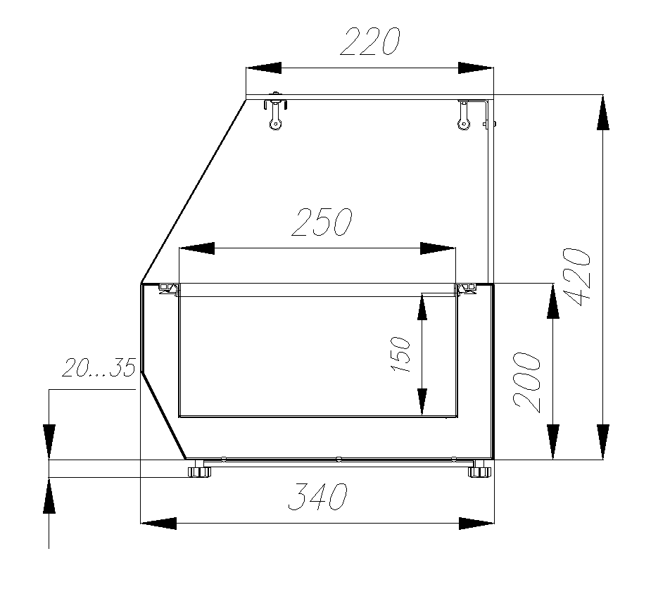
Оборудование может быть установлено на борта специальных столов для приготовления пиццы, а так же может использоваться, как самостоятельное изделие, и снабжено регулируемыми ножками-опорами. По конструктивному исполнению витрина холодильная состоит из теплоизолированного корпуса со встроенным холодильным модулем. Крышка над холодильным агрегатом выполнена в виде горизонтальной площадки и выполняет роль столешницы для сопутствующих и вспомогательных предметов. Испаритель расположен внутри ванны для гастроёмкостей. В ванне имеется отверстие для слива конденсата, который попадает в специальную ёмкость с выпаривателем в машинном отделении.
Все элементы корпуса, которые могут соприкасаться с продуктами питания, изготовлены из нержавеющей стали. Стеклянное ограждение функционально препятствует проникновению теплопритоков и тем самым делает работу холодильной машины более экономичной. Для включения и настройки параметров витрина снабжена выключателем и контроллером.
НЕКОТОРЫЕ ДЕТАЛИ ИМЕЮТ ЗАЩИТНОЕ ПОКРЫТИЕ (ПЛЕНКУ), КОТОРОЕ НЕОБХОДИМО УДАЛИТЬ.
Для нормальной работы витрины необходимо:
-установить изделие в вентилируемом помещении на расстоянии от источников тепла не менее 1,5 м;
-обеспечить хорошую циркуляцию воздуха в той части витрины, где расположен холодильный модуль;
-максимальная температура окружающего воздуха должна быть не выше 32 град С;
-в гастроёмкости, установленные в витрину, загружать продукты, охлажденными до заданной температуры.
Комбинация гастроёмкостей может варьироваться. Глубина ёмкостей до 150 мм.
Оборудование может быть установлено на борта специальных столов для приготовления пиццы, а так же может использоваться, как самостоятельное изделие, и снабжено регулируемыми ножками-опорами. По конструктивному исполнению витрина холодильная состоит из теплоизолированного корпуса со встроенным холодильным модулем. Крышка над холодильным агрегатом выполнена в виде горизонтальной площадки и выполняет роль столешницы для сопутствующих и вспомогательных предметов. Испаритель расположен внутри ванны для гастроёмкостей. В ванне имеется отверстие для слива конденсата, который попадает в специальную ёмкость с выпаривателем в машинном отделении.
Все элементы корпуса, которые могут соприкасаться с продуктами питания, изготовлены из нержавеющей стали. Стеклянное ограждение функционально препятствует проникновению теплопритоков и тем самым делает работу холодильной машины более экономичной. Для включения и настройки параметров витрина снабжена выключателем и контроллером.
НЕКОТОРЫЕ ДЕТАЛИ ИМЕЮТ ЗАЩИТНОЕ ПОКРЫТИЕ (ПЛЕНКУ), КОТОРОЕ НЕОБХОДИМО УДАЛИТЬ.
Для нормальной работы витрины необходимо:
-установить изделие в вентилируемом помещении на расстоянии от источников тепла не менее 1,5 м;
-обеспечить хорошую циркуляцию воздуха в той части витрины, где расположен холодильный модуль;
-максимальная температура окружающего воздуха должна быть не выше 32 град С;
-в гастроёмкости, установленные в витрину, загружать продукты, охлажденными до заданной температуры.
Комбинация гастроёмкостей может варьироваться. Глубина ёмкостей до 150 мм.
| Модель | Габаритные размеры, мм | Масса, кг | t, °C | Экс. пл-дь, м2 | Потр-е эл/эн в сутки, кВт | Цена, руб | |||
|---|---|---|---|---|---|---|---|---|---|
| Длина | Ширина | Высота | |||||||
![]()
|
A30 SM 0,9 (3 GN1/4)
Посмотреть чертеж |
900 | 340 | 220 (255) | 23 | +2...+10 | - | 3,0 | |
![]()
|
A30 SM 1,2 (5 GN1/4)
Посмотреть чертеж |
1200 | 340 | 220 (255) | 26 | +2...+10 | - | 3,3 | |
![]()
|
A30 SM 1,2 с крышкой (5 GN1/4)
Посмотреть чертеж |
1200 | 340 | 245 (280) | 28 | +2...+10 | - | 3,3 | |
![]()
|
A30 SM 1,2-G (5 GN1/4)
Посмотреть чертеж |
1200 | 340 | 420 (455) | 34 | +2...+10 | - | 3,3 | |
![]()
|
A30 SM 1,4 (6 GN1/4)
Посмотреть чертеж |
1375 | 340 | 220 (255) | 28 | +2...+10 | - | 3,5 | |
![]()
|
A30 SM 1,6 (7 GN1/4)
Посмотреть чертеж |
1630 | 340 | 220 (255) | 30 | +2...+10 | - | 3,6 | |
![]()
|
A30 SM 1,6 с крышкой (7 GN1/4)
Посмотреть чертеж |
1630 | 340 | 245 (280) | 31 | +2...+10 | 3,6 | ||
![]()
|
A30 SM 1,6-G (7 GN1/4)
Посмотреть чертеж |
1630 | 340 | 420 (455) | 39 | +2...+10 | - | 3,6 | |
![]()
|
A30 SM 1,9 (9 GN1/4)
Посмотреть чертеж |
1850 | 340 | 220 (255) | 31 | +2...+10 | - | 3,6 | |
Стандартная комплектация
- Электронный блок управления
- Корпус - нержавеющая сталь
- Термоизоляция корпуса- пенополиуретан
- Экспозиционная поверхность из нержавеющей стали
- Оттайка естественными теплопритоками с системой испарения конденсата
- Стеклянный колпак, LED подсветка (для моделей G)
- Крышка - нержавеющая сталь, ручка (для моделей с крышкой)
Опции
- Гастроемкости GN1/4 (265х162х150)





























